Cocina en Urquijo
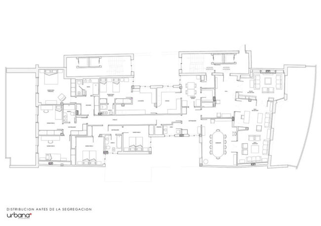
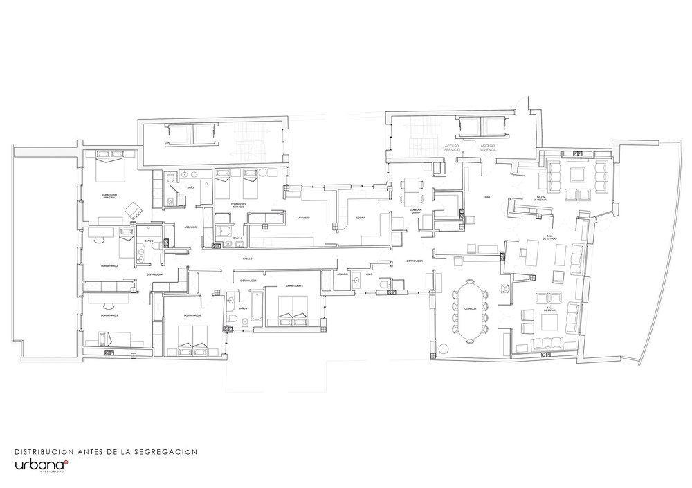
interiorismo bilbao Proyecto de reforma de cocina en Urquijo, Bilbao Este proyecto de reforma integral fue llevado a cabo por los expertos Antonia Vidal y David González, en pleno centro de Bilbao. El objetivo fue transformar una vivienda tradicional en un espacio moderno, funcional y lleno de luz, sin perder su esencia original. Optimización de espacios: Unificación del comedor y la cocina Si bien la zona de noche no sufrió grandes modificaciones, se realizaron cambios significativos en la zona de día. La cocina y el comedor se unieron en un único espacio abierto, lo que no solo mejoró la distribución, sino que también aportó amplitud y luminosidad a toda la estancia. Este diseño contemporáneo optimiza el flujo del espacio, creando un ambiente más acogedor y práctico para el día a día. Materiales modernos y sostenibles: Elegancia y durabilidad Para garantizar una reforma duradera y estéticamente atractiva, se seleccionaron materiales modernos y sostenibles, con acabados en tonos neutros que aportan elegancia y sofisticación. La elección de estos materiales no solo embellece la vivienda, sino que también asegura una mayor durabilidad y resistencia, ideal para el estilo de vida moderno y activo de los propietarios. Tecnología y eficiencia energética: Una vivienda inteligente La integración de tecnología moderna fue un aspecto clave en esta reforma. Se instalaron sistemas de iluminación LED eficientes, electrodomésticos de bajo consumo y soluciones de domótica que permiten a los propietarios controlar fácilmente diversos aspectos de la vivienda, como la temperatura, la iluminación y la seguridad. Además, se emplearon materiales sostenibles para reducir el impacto ambiental de la reforma, haciendo de este hogar un ejemplo de eficiencia energética. Un proyecto de reforma integral para una vivienda soñada El resultado es una vivienda moderna, funcional y completamente transformada, que refleja a la perfección el diseño innovador y la ejecución meticulosa de este proyecto de reforma integral en el centro de Bilbao. Este proyecto demuestra cómo una visión clara y un diseño personalizado pueden convertir una vivienda tradicional en un hogar lleno de luz, comodidad y estilo. ¿Estás pensando en reformar tu hogar? Si estás considerando reformar tu casa, Urbana Interiorismo está aquí para ayudarte a hacer realidad tu visión. Trabajamos contigo en cada paso del proceso, desde el diseño hasta la ejecución, para crear el hogar de tus sueños. Contacto Urbana Interiorismo, es un estudio especializado en reformas de hogar, decoración y diseño de mobiliario. Urbana Interiorismo dispone de un Estudio y Showroom ubicados en la Calle Ercilla 20 en Bilbao.
















