Reforma de vivienda en Lekeitio
¡Pincha para ver más información sobre el proyecto!Cliente:
ParticularServicios
Reforma integral Diseño de interioresCategoria:
Compartido:
Galería
Descripción
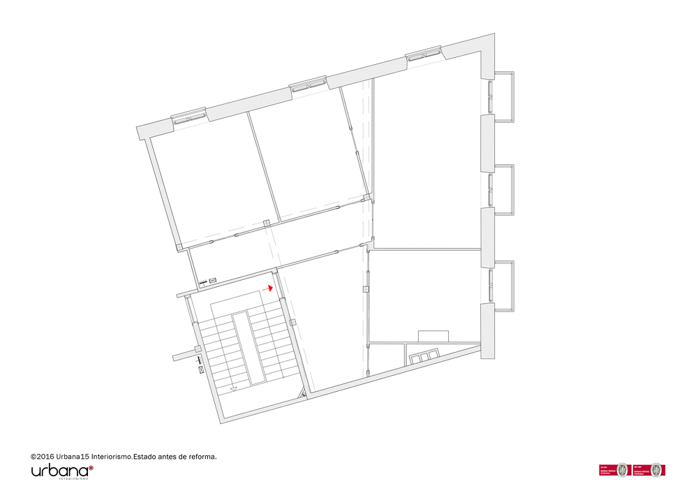
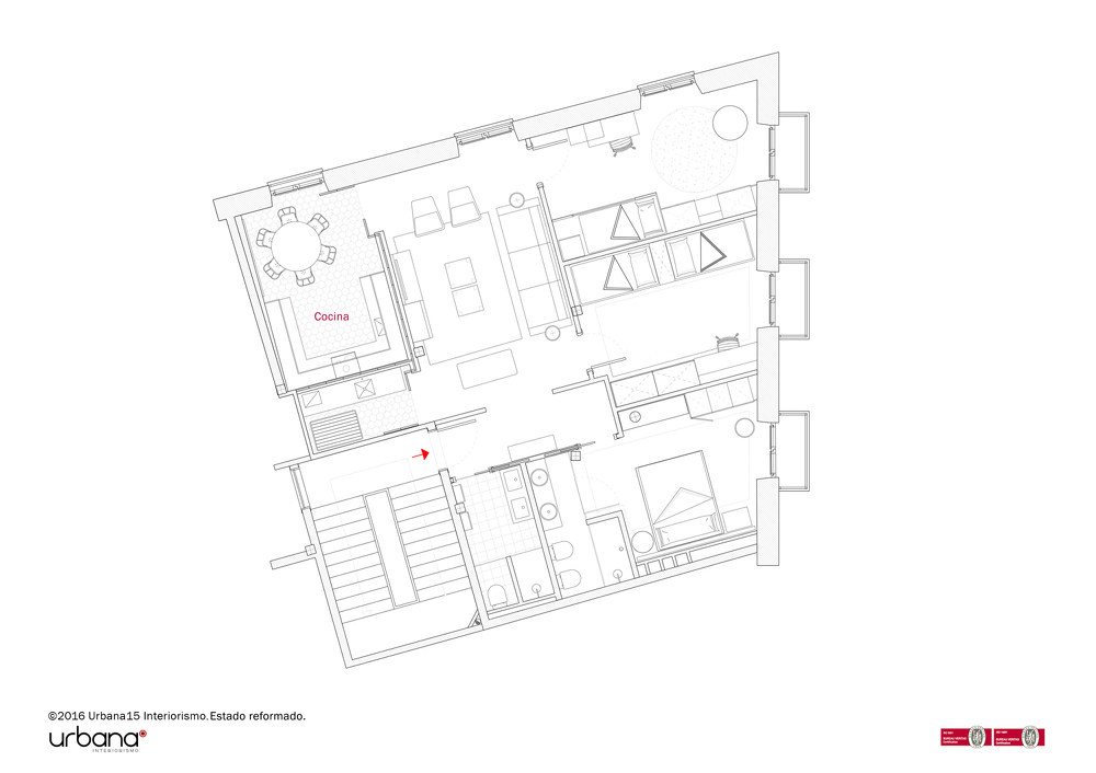
Proyecto de reforma de vivienda en Lekeitio
En el corazón del puerto de Lekeitio, esta segunda vivienda se ubica en un edificio con más de cien años de historia. Originalmente, toda la planta pertenecía a una única vivienda. Sin embargo, tras su segregación, surgió el reto de transformar esta nueva unidad en un hogar independiente, moderno y funcional. Para lograrlo, fue necesario incorporar desde cero todas las infraestructuras básicas, incluyendo sistemas de fontanería, electricidad y bajantes, que antes no existían en esta parte del inmueble.
Aprovechamiento del espacio y enfoque funcional
Durante el proceso de reforma integral, nos enfocamos en optimizar cada metro cuadrado, apostando por un diseño sencillo, práctico y bien distribuido. Gracias a su orientación hacia el mar, la vivienda disfruta de una luz natural envidiable y de unas vistas impresionantes, elementos que influyeron directamente en la concepción del proyecto. Además, la distribución interior fue cuidadosamente pensada para favorecer la convivencia y el confort, haciendo de esta casa un refugio perfecto para disfrutar del verano en familia.
Un refugio acogedor frente al mar
El resultado final es un hogar cálido y acogedor, pensado para desconectar y relajarse. Los espacios amplios y bien iluminados crean una atmósfera tranquila, ideal para descansar tras un día junto al mar. A pesar de su renovación completa, la vivienda conserva el carácter original del edificio, integrando la historia del entorno con las comodidades de la vida contemporánea. Así, esta reforma no solo responde a las necesidades funcionales de hoy, sino que también mantiene viva la esencia marinera de Lekeitio.
¿Estás pensando en una reforma integral?
Si estás considerando reformar tu hogar, Urbana Interiorismo está aquí para ayudarte a hacer realidad tu visión. Trabajamos contigo en cada paso del proceso, desde el diseño hasta la ejecución, para crear el hogar de tus sueños.
Urbana Interiorismo es un estudio especializado en reformas de hogar, decoración y diseño de mobiliario.
Urbana Interiorismo dispone de un Estudio y Showroom ubicado en la Calle Ercilla 20, Bilbao.














