Skip to content
Tel. +34 94 479 56 78Calle Ercilla 20 · Bilbao
Facebook page opens in new windowPinterest page opens in new windowInstagram page opens in new window
Urbana Interiorismo
Interiorismo y Reformas en Bilbao
Urbana InteriorismoUrbana Interiorismo
  • Servicios
    • Reformas
      • Reformas Integrales
      • Reforma Cocinas
      • Reformas Baños
      • Reformas Oficinas
      • Reformas Locales
    • Interiorismo
    • Decoración
    • Segregación de viviendas
    • Servicios inmobiliarios
  • Nuestros proyectos
    • Proyectos Reformas Hogar
    • Proyectos Decoración Hogar
    • Proyectos Cocinas – Baños
    • Proyectos Oficinas
    • Proyectos Hostelería
    • Fotografía
  • Showroom
  • Cómo trabajamos
    • Quiénes somos
    • Cómo trabajamos
    • Por qué elegirnos
  • FAQ
  • Blog
  • Contacto
Search:
Buscar
  • Servicios
    • Reformas
      • Reformas Integrales
      • Reforma Cocinas
      • Reformas Baños
      • Reformas Oficinas
      • Reformas Locales
    • Interiorismo
    • Decoración
    • Segregación de viviendas
    • Servicios inmobiliarios
  • Nuestros proyectos
    • Proyectos Reformas Hogar
    • Proyectos Decoración Hogar
    • Proyectos Cocinas – Baños
    • Proyectos Oficinas
    • Proyectos Hostelería
    • Fotografía
  • Showroom
  • Cómo trabajamos
    • Quiénes somos
    • Cómo trabajamos
    • Por qué elegirnos
  • FAQ
  • Blog
  • Contacto

Vivienda segregada 2 en Getxo

¡Pincha para ver más información sobre el proyecto!

Cliente:

Particular

Servicios

Reforma integral Diseño de interiores

Categoria:

Reformas - Interiorismo

Compartido:

Facebook Pinterest Instagram

Galería

Descripción

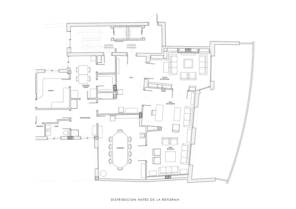
Proyecto de vivienda segregada 2 en Getxo

Esta vivienda en Getxo, resultado de un proyecto de segregación de un piso de 400m² en Bizkaia, ha sido diseñada para ofrecer un espacio cómodo, amplio y funcional. El objetivo principal fue crear un hogar que combinara espacios generosos con una distribución que favoreciera tanto el confort como la estética moderna.

Salones amplios con vistas al mar

En el diseño de la vivienda se crearon dos salones contiguos. Uno de ellos, dedicado al descanso y la lectura, cuenta con una chimenea restaurada de la antigua vivienda, lo que añade un toque de calidez y carácter al espacio. El otro salón está pensado como un lugar perfecto para recibir visitas y disfrutar de las impresionantes vistas al mar, creando un ambiente ideal para relajarse y socializar.

Suite principal con vestidor y baño privado

Uno de los elementos más destacados de este proyecto es el diseño de la habitación principal, concebida como una suite. Esta suite se articula en tres estancias contiguas: un vestidor central flanqueado por armarios en Nogal y Lino, que da paso tanto al dormitorio como a un amplio baño doble. Esta distribución permite el uso independiente de las estancias sin interferir en la comodidad de quien descanse en el dormitorio.

Cocina y comedor: diseño funcional y elegante

La cocina y el comedor han sido diseñados para ofrecer una conexión flexible. Mediante una estructura de herrería lacada en blanco, con puertas correderas a ambos lados, los espacios pueden estar comunicados o separados según las necesidades. El comedor de diario es el punto de transición hacia una cocina moderna y funcional, pensada para facilitar tanto el trabajo diario como la interacción familiar.

Importancia de la iluminación y el mobiliario en el diseño interior

En este proyecto, se ha dado una gran importancia a la iluminación y a la elección del mobiliario, seleccionando piezas de alta calidad que complementan y realzan el diseño de los espacios. La distribución de la luz natural y artificial asegura ambientes acogedores y bien iluminados, mientras que el mobiliario elegido aporta un toque de elegancia y funcionalidad a cada estancia.


¿Estás pensando en una reforma integral?

Si estás considerando reformar tu hogar, Urbana Interiorismo está aquí para ayudarte a hacer realidad tu visión. Trabajamos contigo en cada paso del proceso, desde el diseño hasta la ejecución, para crear el hogar de tus sueños.

Contacto

Urbana Interiorismo es un estudio especializado en reformas de hogar, decoración y diseño de mobiliario.

Urbana Interiorismo dispone de un Estudio y Showroom ubicado en la Calle Ercilla 20, Bilbao.