Segregación de una vivienda de 400m2 en Getxo
¡Pincha para ver más información sobre el proyecto!Cliente:
ParticularServicios
Reforma integral Arquitectura de interioresCategoria:
Compartido:
Galería
Descripción
Proyecto de segregación de una vivienda de 400 m² en Getxo
Hoy en día, muchas viviendas de grandes dimensiones (especialmente aquellas que superan los 300 o 400 m²) han dejado de tener una alta demanda en el mercado. Esto se debe, en gran parte, a los cambios en los estilos de vida, en la forma de habitar los espacios y en la composición de las familias actuales. En consecuencia, los propietarios se enfrentan al reto de adaptar sus inmuebles a estas nuevas realidades habitacionales.
Segregación de viviendas: Una respuesta eficaz a las nuevas demandas
Frente a este panorama, la segregación de viviendas se presenta como una solución eficiente. Este proceso permite dividir una propiedad de gran tamaño en unidades más pequeñas, lo que no solo responde a las tendencias actuales del mercado, sino que también mejora las condiciones económicas tanto del vendedor como del comprador. Además, permite optimizar el uso del espacio sin necesidad de abandonar inmuebles con gran potencial.
Reforma integral en Getxo: Un proyecto de transformación de 400 m²
Con este enfoque, el equipo de Urbana llevó a cabo recientemente un proyecto completo de segregación en Getxo. En este caso, la vivienda original, de 400 m², fue transformada en dos hogares independientes de 200 m² cada uno. Este trabajo incluyó todas las fases del proyecto: desde la reforma y el interiorismo, hasta la decoración final. Así, logramos adaptar completamente cada nueva vivienda a las necesidades y preferencias de sus futuros habitantes.
Asesoramiento personalizado durante todo el proceso
A lo largo de todo el proceso de segregación, brindamos a nuestros clientes un servicio de asesoramiento integral. Gracias a nuestra amplia experiencia, gestionamos todos los trámites administrativos y legales que conlleva un proyecto de esta envergadura. Entre ellos, destacan:
-
La verificación y cumplimiento de las normativas municipales de habitabilidad y segregación.
-
La obtención de las autorizaciones necesarias por parte de la comunidad de propietarios.
-
El visado técnico de los proyectos, junto con los planes de seguridad exigidos durante la ejecución de las obras.
Por lo tanto, nos encargamos de toda la parte burocrática, permitiendo que nuestros clientes puedan enfocarse únicamente en la ilusión de su nuevo hogar, sin preocupaciones.
Personalización total: Cada vivienda, un proyecto único
Además de la parte técnica, dedicamos un tiempo importante a analizar y comprender las necesidades particulares de cada cliente. De esta forma, diseñamos distribuciones personalizadas que respetan tanto sus gustos como su estilo de vida. En el proyecto de Getxo, por ejemplo, convertimos una única cocina en dos independientes, duplicamos el número de baños de cuatro a ocho, e incorporamos nuevas estancias como salones, dormitorios, entradas y comedores para cada vivienda. También llevamos a cabo la independización total de las instalaciones, garantizando así la autonomía completa de cada unidad.
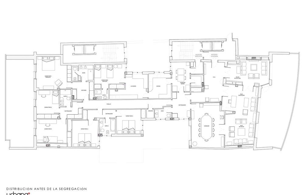
De la idea a la realidad: Transformación visual del espacio
Para ilustrar este proceso de transformación, incluimos los planos de la vivienda antes y después de la segregación. Estos documentos permiten visualizar con claridad cómo hemos adaptado los espacios, reorganizado las zonas comunes y creado dos hogares completamente funcionales.
Además, puedes consultar los proyectos individuales titulados "Segregación 1" y "Segregación 2", donde se detalla con mayor profundidad el resultado final de cada vivienda.
Urbana Interiorismo es un estudio especializado en reformas de hogar, decoración y diseño de mobiliario.
Urbana Interiorismo dispone de un Estudio y Showroom ubicado en la Calle Ercilla 20, Bilbao.










