Reforma de vivienda en la Alameda Urquijo
¡Pincha para ver más información sobre el proyecto!Cliente:
ParticularServicios
Reforma integral Diseño de interioresCategoria:
Compartido:
Galería
Descripción
Proyecto de reforma de vivienda en la Alameda Urquijo, Bilbao
Este proyecto de reforma integral se llevó a cabo en una vivienda de distribución clásica en el centro de Bilbao, confiado a Antonia Vidal y Angélica Aragón. El objetivo principal fue transformar la vivienda en un espacio más moderno, funcional y luminoso, optimizando tanto la distribución como la estética.
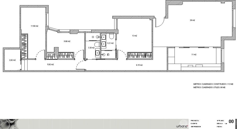
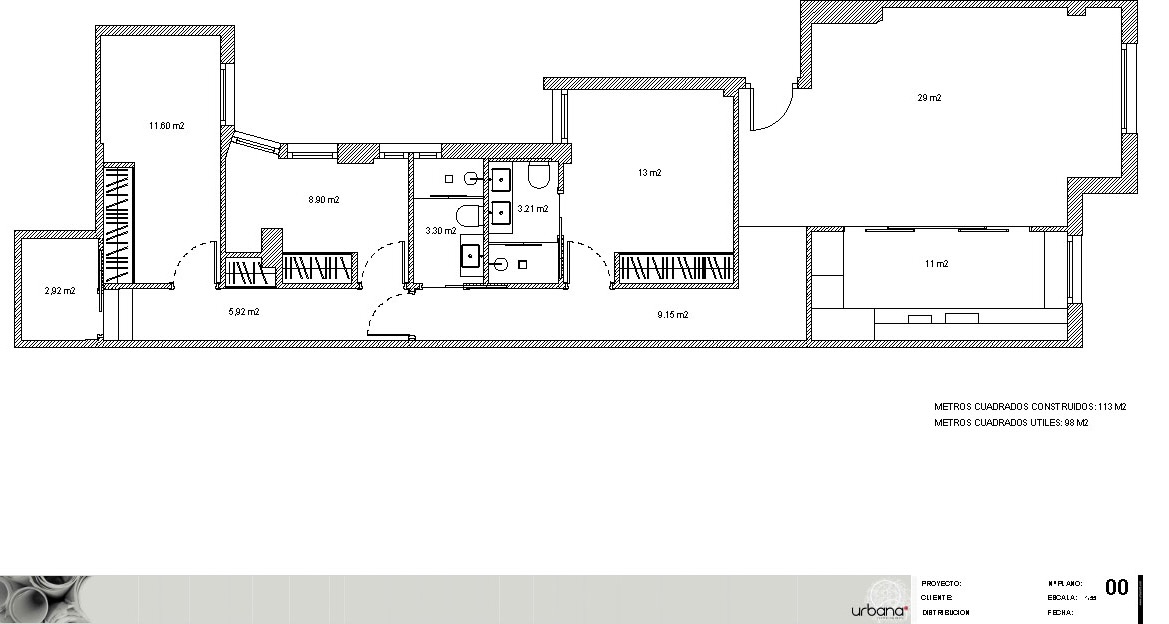
Redistribución de espacios: Cocina semi-integrada y zona de lavado separada
El cambio en la distribución fue radical, logrando una vivienda más actual y adaptada a las necesidades contemporáneas. Se optó por semi-integrar la cocina en el salón, creando un ambiente abierto y fluido, y separando la zona de lavado para mayor comodidad. La cocina, de la firma DOCA, está equipada con electrodomésticos NEFF y cuenta con una barra frente a la ventana, convirtiéndose en un rincón especial para disfrutar.
Zona de día: Salón-Comedor y cocina con vistas a la Alameda Urquijo
La nueva distribución de la zona de día, que incluye el salón-comedor y la cocina, se orienta hacia la Alameda Urquijo, junto a la Plaza Indautxu, lo que garantiza una gran luminosidad. Este espacio se ha convertido en un área amplia y acogedora, perfecta para disfrutar en familia o recibir visitas. La iluminación natural es uno de los puntos fuertes de esta reforma, aprovechando al máximo las vistas y el entorno.
Ampliación y optimización de espacios: Pasillo y almacenaje
En la zona de paso, se realizaron mejoras para crear una sensación de amplitud. Se empleó un juego especial de iluminación y se acortó el pasillo mediante la instalación de una puerta de paso, lo que aportó más fluidez y accesibilidad. Además, en esta zona se diseñaron dos nuevos armarios complementarios, optimizando el almacenaje de la vivienda.
Zona de noche: Armarios y baños completos
En la zona de noche, se dio especial importancia al almacenaje con amplios armarios lacados que mantienen la armonía visual de la vivienda. La reforma también incluyó la instalación de dos baños totalmente equipados, con materiales de alta calidad y acabados modernos, que proporcionan funcionalidad y confort.
Materiales de alta calidad: Suelos, ventanas y techos
Para el suelo de la vivienda se eligió una tarima tricapa de roble natural, que aporta calidez y elegancia al espacio. Las ventanas de PVC con climalit y puente térmico garantizan un excelente aislamiento acústico y térmico. En el salón-comedor y la habitación principal, se realizó un foseado de techos con iluminación LED empotrada, creando una atmósfera acogedora y moderna.
Proyecto de decoración integral: Un diseño funcional y estético
Este proyecto de reforma integral, interiorismo y decoración llave en mano ha logrado transformar una vivienda clásica en un espacio actual, funcional y adaptado a las necesidades de los propietarios. Las infografías del proyecto reflejan la transformación y el diseño final, donde cada detalle ha sido cuidado para ofrecer un hogar cómodo, elegante y bien distribuido.
¿Estás pensando en una reforma integral?
Si estás considerando reformar tu hogar, Urbana Interiorismo está aquí para ayudarte a hacer realidad tu visión. Trabajamos contigo en cada paso del proceso, desde el diseño hasta la ejecución, para crear el hogar de tus sueños.
Urbana Interiorismo, es un estudio especializado en reformas de hogar, decoración y diseño de mobiliario.
Urbana Interiorismo dispone de un Estudio y Showroom ubicados en la Calle Ercilla 20 en Bilbao.





































